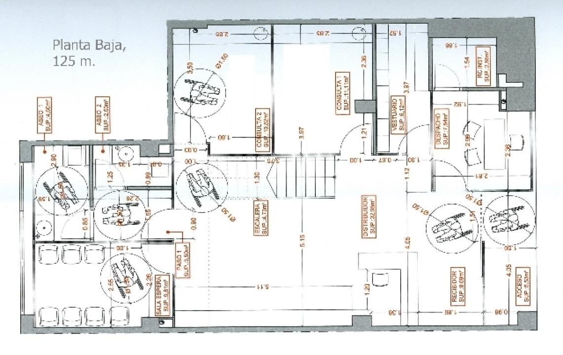
L00025 VALENCIA
- En venta
- 395.000 €
- - Local
- Zona CAMINS AL GRAU
- Superficie: 182 m2
LOCAL REFORMADO JUNTO A EL CORTE INGLÉS
Excepcional local junto a El Corte Inglés y el Centro Comercial Aqua, totalmente reformado, con aire acondicionado y todas las mejoras para ocupar de inmediato. Planta baja de 125 m2 con gran recepción con espectacular presencia, 4 estancias, 2 baños y gran archivo, más 1ª planta con más de 60 m2, distribuidos en 4 estancias y otro gran archivo. El local puede quedar completamente diáfano fácilmente, según necesidades del negocio, o respetar la distribución actual. Estupenda zona residencial y muy comercial, local preparado para cualquier centro médico o clínica, para oficinas, centro de estética o cualquier tipo de comercio. ¡Excepcional precio, reforma de más 200.000 €! Rebajado de más de 800.000 €. Rodeado de negocios en pleno funcionamiento: restaurantes, clínicas, gimnasio, centro de fisioterapia, farmacia, centros comerciales...
- Mapa
